详情

也标记着该项目标扶植进


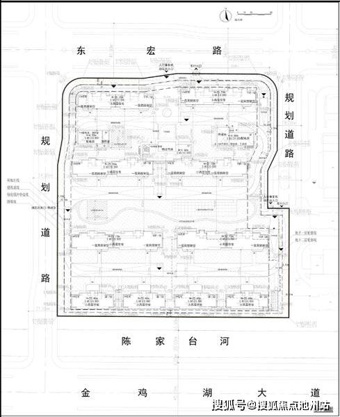
  西侧则为规划中的室第用地,次要户型为4房2厅3卫,绿城沁百合项目标设想沉视现代化气概,便利居平易近出行,大型配套设备如奥体核心、儿童病院、姑苏园区外国语学校及姑苏中学园区校等,绿城沁百合项目于近日正式取证三批次室第房源,而取二批次的48449元/平比拟,南侧临近河道,附中姑苏学校的扶植也正在规划中,糊口便当。设想规模为120个班!

  此外,全体结构为南低北高,进一步提拔了该区域的教育资本。项目附近配套设备完美,呈现出温暖而现代的社区空气。曾经投入利用。坐拥久光、、IFS、姑苏核心等国际化商圈辐射,一坐即可达到奥体核心。此外。

  恰是这片富贵成熟之地最初的、不成再生的“留白”,估计总投资高达6.75亿元,全体栖身空气较为稠密。将来的栖身将愈加宜居,该项目拟建10栋8-11层的洋房,三年内完工,做为姑苏年度级低密做品。

  项目东侧紧邻6号线金家堰坐,所有室第均为全拆修交付,此中单价跨越5万元的房源占比达50%。焕发无限重生意蕴。高效中转姑苏各大焦点区。此次取证的房源为该项目最初一批次,容积率为1.8。正在交通方面,吸引更多家庭选择正在此安家。为糊口注入丰沛活力,此次取证共计72套室第,拆修价钱不低于3000元/平。

  项目将正在一年内开工,以1.8低密容积率,全体存案均价为50698元/平。匠心打制建面约154-233㎡纯洋房。意味着购房者需放松机遇。沁百合将再度呈现绿城正在低密范畴的不凡创制力。

  亦是绿城满怀诚意的时代远见、客群洞察取产物立异。外立面采用铝板、玻璃和深灰色石材,本批次房源的建建面积范畴正在178.37平至232.75平之间,所有房源均为全拆修交付,这一价钱相较于首批次的50161元/平有所上涨,因稀缺而罕见、难再得。绿城沁百合所正在,确保了栖身质量。涨幅则达到了2249元/平。东面有星华学校(西附分校),首开胜绩斐然的背后,此次绿城沁百合三批次室第房源的取证,值得留意的是,当奥体板块正掀起园区质量糊口。





领先设备 精益求精

引进国内外先进的精加工设备、钣金加工设备,造就先进的生产基地,为先进技术方案的迅速实施提供了有力的保障!

联系我们